Round Street Lighting Poles With Angled Bracket
Category: Street lighting poles
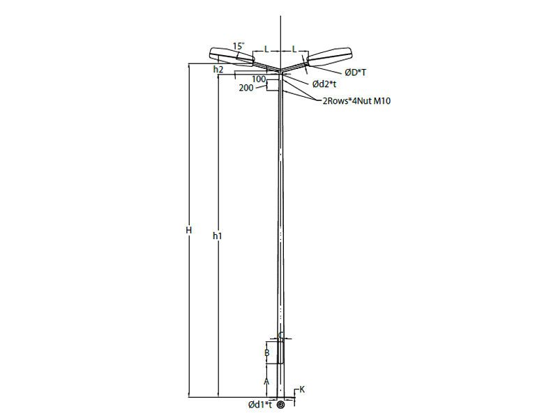
Technical Data
| Code | H | h1 | h2 | Ød1 | Ød2 | t | L | ØD*T | T.Weight Kg |
| SP/Ro/5A/60/130/3/HD | 5000 | 4810 | 190 | 130 | 60 | 3 | 500 | 60*3 | 49 |
| SP/Ro/6A/75/140/4/HD | 6000 | 5810 | 190 | 140 | 75 | 4 | 500 | 60*3 | 83 |
| SP/Ro/7A/75/146/4/HD | 7000 | 6775 | 225 | 146 | 75 | 4 | 700 | 60*3 | 96 |
| SP/Ro/8A/75/165/4/HD | 8000 | 7775 | 225 | 165 | 75 | 4 | 700 | 60*3 | 121 |
| SP/Ro/8A/75/165/5/HD | 8000 | 7775 | 225 | 165 | 75 | 5 | 700 | 60*3 | 145 |
| SP/Ro/9A/75/180/4/HD | 9000 | 8725 | 275 | 180 | 75 | 4 | 1000 | 60*3 | 141 |
| SP/Ro/9A/75/180/5/HD | 9000 | 8725 | 275 | 180 | 75 | 5 | 1000 | 60*3 | 169 |
| SP/Ro/10A/90/195/4/HD | 10000 | 9625 | 375 | 195 | 90 | 4 | 1000 | 60*3.5 | 203 |
| SP/Ro/10A/90/195/5/HD | 10000 | 9625 | 375 | 195 | 90 | 5 | 1000 | 60*3.5 | 237 |
| SP/Ro/11A/100/220/5/HD | 11000 | 10625 | 375 | 220 | 100 | 5 | 1200 | 60*3.5 | 245 |
| SP/Ro/11A/100/220/6/HD | 11000 | 10625 | 375 | 220 | 100 | 6 | 1200 | 60*3.5 | 288 |
| SP/Ro/12A/120/250/5/HD | 12000 | 11625 | 375 | 250 | 120 | 5 | 1200 | 60*3.5 | 308 |
| SP/Ro/12A/120/250/6/HD | 12000 | 11625 | 375 | 250 | 120 | 6 | 1200 | 60*3.5 | 362 |
Related products
-
Pole Accessories
Pole accessories provide essential support and functionality, including brackets, clamps, and mounts, ensuring secure attachment and efficient management of cables and equipment on poles.




