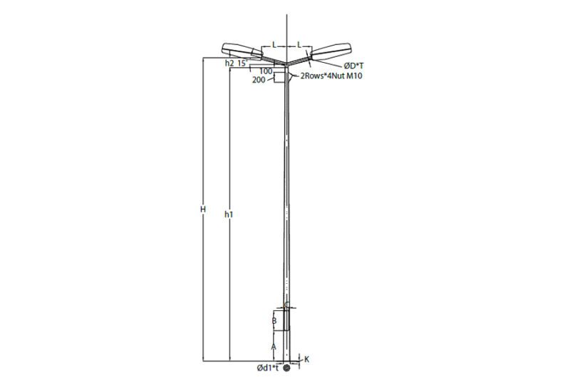
Special Street Lighting Poles With 12 – 14 meters Height